Tehnički nacrti i 3D vizualizacija trailer prikolice

Mladen Tišljar Mladen Tišljar

Za klijenta StreetFoodKing (streetfoodking.ch) izradili smo kompletan set tehničkih nacrta i 3D vizualizacija interijera prodajne trailer prikolice, s ciljem da krajnji klijent prije same izrade dobije jasan i realističan prikaz budućeg izgleda, funkcionalnosti i rasporeda elemenata.

Projekt je obuhvaćao razvoj namjenskog namještaja unutar prikolice, optimiziranog za rad u malom prostoru, s naglaskom na ergonomiju, protočnost rada i integraciju brendiranih elemenata.

Što je rađeno

  • kompletan 3D model interijera trailer prikolice
  • 3D renderi za prezentaciju krajnjem klijentu
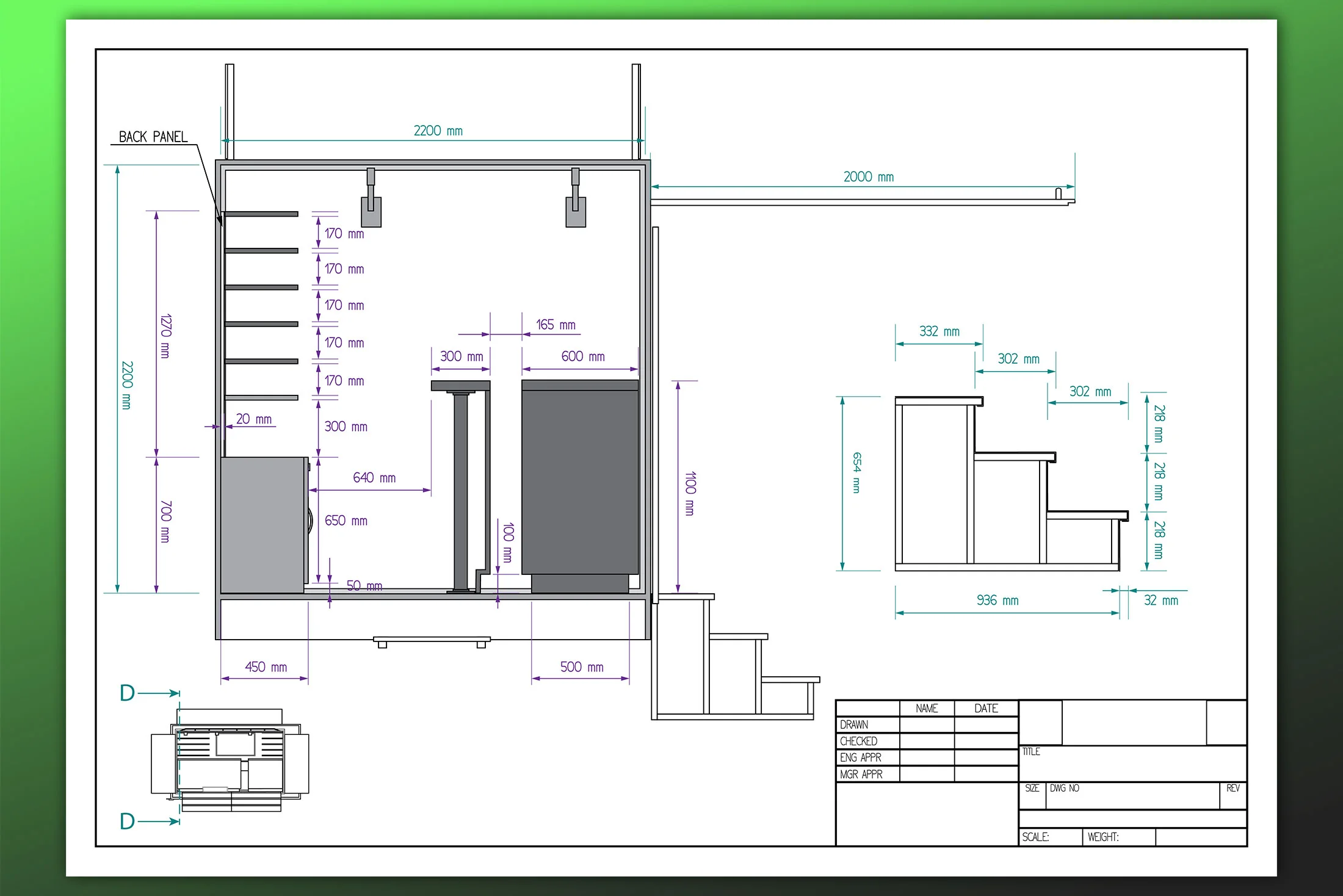
  • tehnički nacrti s točnim mjerama za proizvodnju
  • raspored i dimenzioniranje:
    • radnih pultova (Counter 1 i Counter 2)
    • skladišnih ormarića i lockera
    • zidnih polica i dugih izložbenih polica
    • rasvjete i LED ambijentalnih traka
    • stepenica i ulazne platforme
  • pozicije za branding panele i digitalni ekran

Tehničke specifikacije

  • Ukupna širina objekta: cca 4250 mm
  • Visina interijera: cca 2200 mm
  • Modularni elementi namještaja prilagođeni serijskoj izradi
  • Precizno definirani razmaci polica (170 mm) za izložbene proizvode
  • Integrirana LED rasvjeta u:
    • zidne police
    • prednju masku pulta
    • stepenice
  • Predviđeni prostori za električne instalacije i rasvjetna tijela u stropu

Korišteni alati

  • Autodesk 3ds Max – izrada 3D modela i render vizualizacija
  • DXF tehnički crteži – za proizvodnju i izradu namještaja prema točnim mjerama

Kombinacijom tehničke dokumentacije i realističnih rendera, klijent je mogao jasno vidjeti konačni izgled prije proizvodnje, a izvođači su dobili precizne nacrte za izradu svih elemenata bez dodatnih nejasnoća na terenu.